

Scroll down for more info

Luxury bespoke homes in the heart of
Newcastle Co. Down
The Corragh on Bryansford Road, promises to be the most impressive development in Newcastle for many years.
The former home of the Annesleys, the site is steeped in local history and is located in the most prestigious residential area of Newcastle and consequently the development offers an extremely rare opportunity to obtain a new high quality home in a much sought after area.
With a wide variety of mature trees, attractive shrubs and river frontage the site offers a degrees of maturity which is extremely rare in new developments.
Convenience to parks, Main Street, schools and all Newcastle’s other amenities, plus easy access to forest parks, the world famous Royal County Down Golf Course, horse riding and a host of other rural pursuits combine to make this a very desirable family environment.
Quality of build, design and appearance will ensure many years of low maintenance and worry free occupation of what will prove to be exceptional, traditional family homes.
The Site:


Example Floor Plans:
Recently Completed Properties





Outline Specification
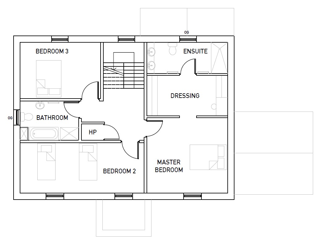
Outline Specification: House Type - B - Approx. 2560 sq.ft.
Two and half story detached house
✓ 3 reception rooms, kitchen/living room, spacious hallway, utility room, W.C.
✓ 5 bedrooms, master with large en suite and walk in dressing room, bathroom and shower room.
✓ Extra high ceiling to ground floor.
✓ Concrete slabs to first floor.
✓ Flush walnut/cherry veneered doors with stainless ironmongery.
✓ Thin lined skirting and architrave.
✓ Staircase with glass balustrade.
✓ Painted hardwood front door with bespoke fanlight and moulded surround.
✓ uPVC double glazed argon filled windows.
✓ Tiled roof with detail to soffit.
✓ Seamless guttering.
✓ Smooth painted render with raised moulded plinth.
✓ Garden fully sown out with planting.
✓ Oil Fired Heating.
✓ Bitmac Driveway.
✓ NHBC 10 year warranty.
✓ NHBC Electrical Specification.
P.C. Allowances:
Kitchen £6000
Bathrooms £2500
Kitchen Wall Tiling £500
Fireplace £1000
Nominated Suppliers:
Kitchens:
Hillside Interiors
19 Ballyardle Road
Kilkeel
028 4176 3104
Natural Wood Kitchens
Dundrum Road
Newcastle
02843723499
Bathrooms:
McCall Supplies
12 Dundrum Road
Clough
Downpatrick 028 4481 1999
J P Corry
Ballydugan ind est Ballydugan Road Downpatrick
028 4461 2011
Fireplaces:
Natural Home Interiors
142 Dundrum Road
Newcastle
028 437 22126
Mourne Fireplaces
90c Temple Shopping Centre
Carryduff Road
Temple Crossroads
028 9263 8162
Tiling:
McCalls Tiles
(details above)
Available Properties
Unfortunately there are no properties available at present.
We are currently awaiting a decision from the planning authority for further properties at this development.
If you are interested and want to be among the first to know when more properties will be available, please enter your details below to be added to our mailing list for this development.
As soon as more information is available it will be circulated to those on the mailing list first before being made public.
Latest Updates:
03/12/2024 @ 4:03pm:
We have had several requests for pricing on the final phase of this development. Unfortunately, due to the ongoing delays with the planning authority and the continued inflationary pressures on building materials, we are unable to provide pricing information until such a time that the application for planning has been approved. We apologise for any inconvenience this may cause. If you have subscribed to the mailing list for more information, we will be in touch once we are in a position to confirm the finer details of the development. If you no longer wish to remain on the mailing list, please email:
info@maghera-developments.com from the email address used to sign-up using "Remove my details" in either the subject line or the main email body, and we will remove your details. It may take up to 24hrs to remove your details. We will send a confirmation email once you have been removed. If you wish to remain on the mailing list, you do not have to do anything.
03/12/2024 @ 11:26am:
We have been made aware that our planning application for this development is progressing through statutory consultations as required. As soon as we are in a position to release further information, it will be circulated to those on our mailing list first and then published to this website after 7 days.
14/11/2024 @ 1:46pm:
We have been contacted by the planning officer for this application and some minor changes to the site have been requested. These have been completed by our design team and revised drawings submitted to the planning authority. If you wish to view and track the planning process, you can do so by visiting:
https://planningregister.planningsystemni.gov.uk/application/685697
01/11/2024 @ 3:28pm:
We are aware that there has been a high volume of requests for information on the final phase of this development. Unfortunately we have still not received any further information from the planning authority on the status of our planning application for the final phase. As soon as we have further information it will be circulated to those on our mailing list first and then published on this webpage 7 days thereafter.








